Z12B type locking assembles

Short Description:

The main function of the expansion coupling sleeve (referred to as the carbylamine sleeve) is to replace the connection of single keys and splines to achieve the connection of parts (such as gears, flywheels, belts, etc.) and shafts to transfer load.


Product Detail

Product Tags

 1. Compared with the general interference connection and key connection, the sleeve connection has many unique advantages:

(1) The use of expansion sleeve makes the manufacture and installation of the main machine parts simple. The machining of the shaft and hole for installing the expansion sleeve does not require high precision manufacturing tolerances like interference fit. There is no need for heating, cooling or pressurizing equipment when the expansion sleeve is installed, only need to tighten the bolts according to the required torque. And the adjustment is convenient, the wheel hub can be conveniently adjusted to the required position on the shaft. Expansion sleeves can also be used to join parts with poor weldability.
(2) Long service life and high strength of the expansion sleeve. The expansion sleeve relies on friction transmission, there is no keyway to weaken the connected part, there is no relative movement, and there will be no wear in the work.
(3) When the expansion sleeve is overloaded, it will lose the connection function, which can protect the equipment from damage.
(4) The expanded sleeve connection can withstand multiple loads, and its structure can be made into a variety of styles. According to the size of the installation load, multiple expansion sleeves can also be used in series.
(5) The expansion sleeve is easy to disassemble and has good interchangeability. Since the expansion sleeve can combine the shaft hub with the larger matching gap, the bolt can be loosened when disassembling, so that the connected part can be easily disassembled. When the contact surface is tightly fitted, it is not easy to produce rust, and it is also easy to connect and disassemble.
2. Torque torque and axial torque of the expansion sleeve
(1) Torque Mt refers to the maximum theoretical torque when transferring pure torque, and axial force Ft refers to the maximum axial force that can be transferred without transferring torque. If you transmit not only torque but also axial force.
(2) Tightening torque MA of the bolt
The torque Mt and axial force Ft specified in the standard are calculated according to the corresponding screw tension, and the tightening torque of the screw should reach the required rating in the technical parameter table.

截屏2024-08-06 15.12.13

Basic size

Hexagon socket screw

Rated load

Expansion sleeve and axle junction

Expansion sleeve and wheel hub

Tightening torque of the screw

weight

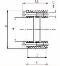
d

D

1

L

L1

d1

n

Axial force Ft

Torque Mt

Pressure on the joint surface

Pressure on the bonding surface

w.t

Basic dimensions(mm)

   

kN

KN-m

pf N/mm2

pf  N/mm²

MaNm

kg

 200

260

88

102

116

M14

20

1020

102

194

124

230

15.3

 220

285

96

108

124

M16

15

1060

117

174

113

355

20.2

 240

305

96

108

124

M16

20

1410

170

212

140

355

21.8

 260

325

96

108

124

M16

21

1480

193

205

138

355

23.4

 280

355

96

110

130

M20

15

1650

232

213

141

690

30.0

 300

375

96

110

130

M20

15

1650

249

198

134

690

31.2

 320

405

124

136

156

M20

20

2210

354

191

125

690

48.0

 340

425

124

136

156

M20

20

2210

376

180

119

690

51.0

 360

455

140

156

177

M22

20

2750

496

185

118

930

69.0

 380

475

140

155

177

M22

20

2750

524

175

113

930

73.0

 400

495

140

155

177

M22

22

3010

602

183

122

930

76.0

 420

515

140

155

177

M22

24

3300

694

190

127

930

80.0

 440

535

140

155

177

M22

24

3300

728

166

123

930

81

 460

555

140

155

177

M22

24

3300

760

159

118

930

85

 480

575

140

155

177

M22

25

3440

830

159

119

930

88

 500

595

140

166

177

M22

25

3440

861

153

115

930

91

 520

615

140

155

177

M22

28

3850

1003

164

124

930

95

 540

635

140

155

177

M22

28

3850

1042

158

120

930

98

 560

655

140

155

177

M22

30

4130

1157

163

125

930

101

 580

675

140

155

177

M22

30

4130

1199

158

121

930

104

 600

695

140

155

177

M22

30

4130

1240

153

118

930

108

 


  • Previous:
  • Next:

  • Related Products